歡迎來到安平縣秉德絲網制品有限公司網站!

山東濟南防落物網專業(yè)生產廠家
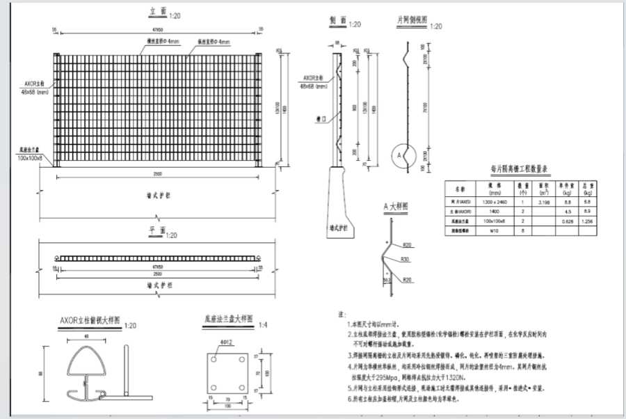
1,本圖尺寸均以mm計。
2.立柱底部焊接法蘭盤,使用膠粘型(化學錨栓)螺栓安裝在護欄頂面,在化學反應時間內不可對螺桿搖動或施加載重。
3.焊接網隔離柵的立柱及片網均采用先熱浸鍍鋅、磷化,鈍化、再噴塑的三重防腐處理措施。
4.片網為單橫絲單縱絲,均采用冷拉鋼絲焊接而成,網片的涂望絲徑為4mm。其網片鋼絲抗拉強度大于295Mpa,網格焊點抗拉力大于1320N。
5.片網與立柱采用掛鉤形式連接,現場施工時無需焊接或其他連接件,采用”推進式” 安裝。
6.所有立桂應加蓋柱帽,片網及立柱顏色均為草綠色。